
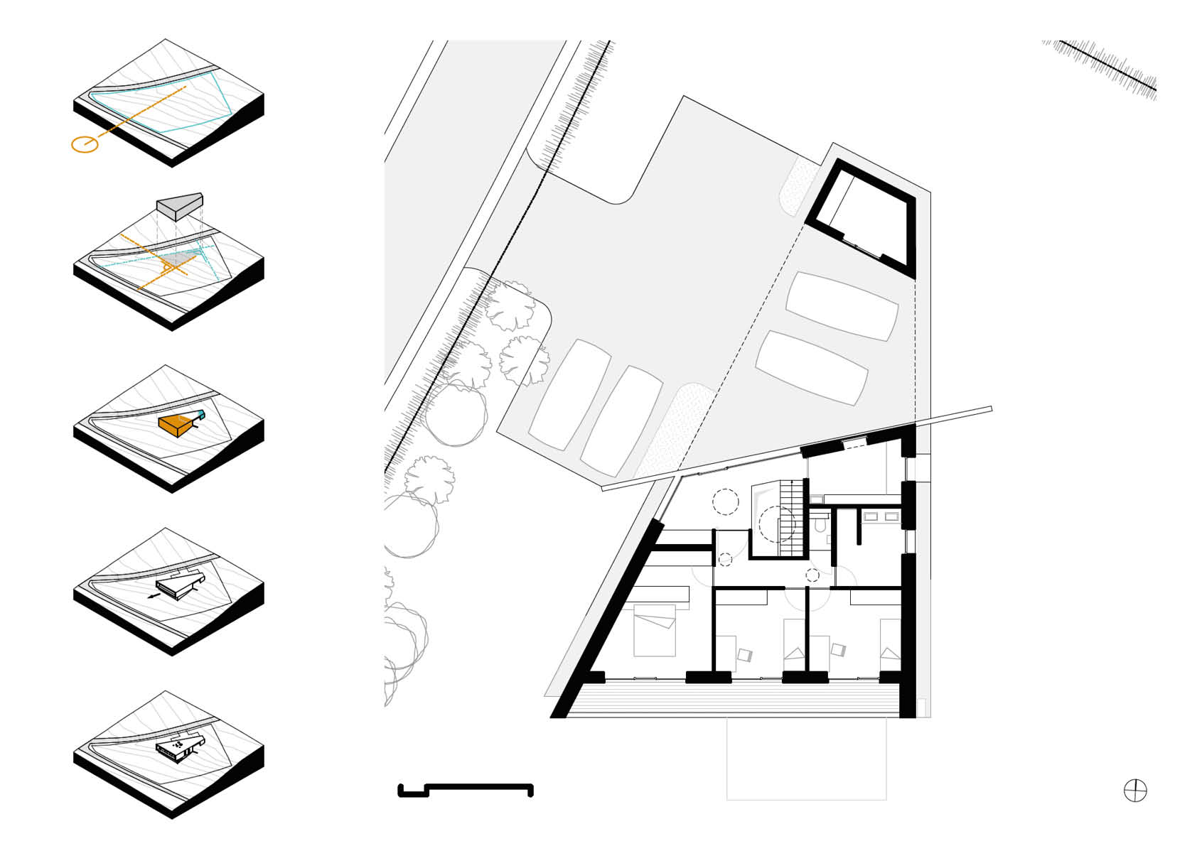
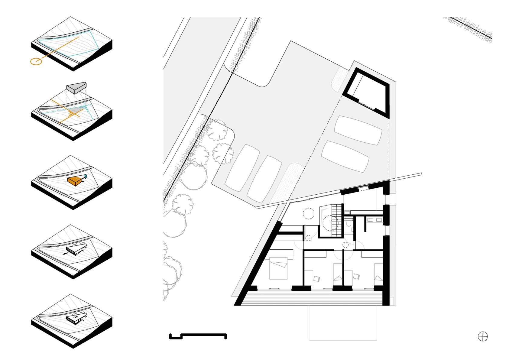
Les maitres d’ouvrage de cette maison, passionnés d’architecture, ont décidé d’allier béton et acier corten, pour des raisons pratiques comme esthétiques. L’élément porteur de la structure est un voile de béton de 6 mètres de haut, coulé sur place et laissé apparent pour un style délibérément brut. Les murs et les plafonds sont conçus en dalles de béton coffrées et la dalle de sol est en béton lissé à l’hélicoptère.
Pour éviter une ambiance trop froide, les maitres d’ouvrage ont fait installer un bardage en acier Corten sur l’ensemble des façades du niveau 0, pour un total de plus de 138 m². De largeurs différentes, les panneaux apportent également rythme et relief à l’intérieur. Au-delà de son aspect esthétique de la rouille et la patine caractéristiques de l’acier Corten, celui-ci s’avère également être un choix pratique : grâce à ses qualités auto-protectrices, il ne requiert aucun entretien.