
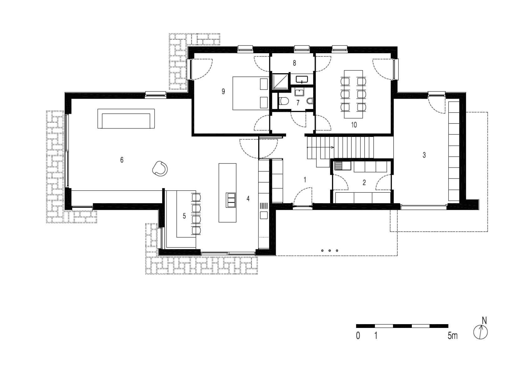
Grâce à sa forme, à l’utilisation judicieuse des matériaux et au choix spécifique des couleurs, cette maison unifamiliale, qui abrite également un bureau d’architecture, s’intègre parfaitement dans son environnement verdoyant. L’idée était d’éviter la surchauffe par les fenêtres vitrées orientées au sud et à l’ouest grâce à des plantes grimpantes, offrant ombre et fraicheur, sur trois auvents en acier. Ils se composent chacun de trois plans, divisés en segments avec un motif récurrent et suspendus entre des ailettes en acier fixées au gros oeuvre.
La simplicité intrinsèque de la programmation et de la conception a facilité la fabrication et l’assemblage, réalisés par un artisan local. Tous les auvents sont constitués de profilés en caisson formés à froid (80x40x3 mm et 40x40x3 mm), qui ont été métallisés et revêtus par pulvérisation d’un coating RAL de couleur noir-olive, avant d’être assemblés. Au total, 33 ailettes de suspension et 26 grilles de remplissage ont été utilisées. Pour les 40 m2 de surface d’auvent, une tonne d’acier a été nécessaire.